Alpha Makelaardij

Abel Tasmanlaan 3
2803 GH GOUDA
Vraagprijs € 750.000,- kosten koper
Omschrijving
Omschrijving
Uniek in de Randstad: een halfvrijstaande bungalow met garage en heerlijke tuin rondom! Dit fijne huis is goed onderhouden, modern afgewerkt en gelegen aan een brede sloot. De woonwijk is ruim opgezet, rustig en toch op korte afstand van alle voorzieningen.

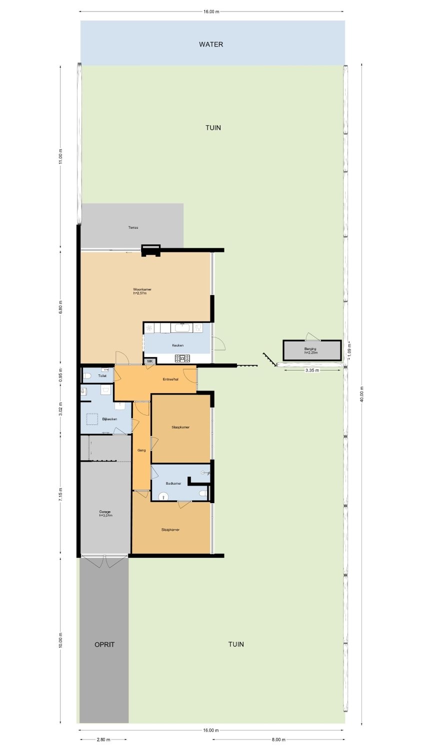
Bouwjaar 1979. Het woonoppervlak bedraagt 121 m² + 22 m² garage, de inhoud is 480 m³. Gelegen op 637 m² eigen grond.

De indeling is als volgt:
begane grond: entree, ruime hal met meterkast en modern toilet met fontein. Ruime, lichte woonkamer (L-vorm) met een gezellige gashaard, grote ramen en een schuifpui naar de tuin. Luxe keuken voorzien van een dubbel aanrecht (composiet), 2 rvs spoelbakken, magnetron, oven, 5 pits gaskookplaat, afzuigkap, koelkast, vriezer en nieuwe vaatwasser. Verder veel laden en een deur naar tuin. Vanuit de gang zijn achtereenvolgens bereikbaar een grote slaapkamer 1, luxe badkamer met gietvloer, inloopdouche, wastafel met meubel, hangend toilet, designradiator en lichtkoepel. Ruime slaapkamer 2 met airconditioning en kledingkast. Inpandige berg-/was-/cv-ruimte met aanrechtblad, kasten en een lichtkoepel. Deur naar de garage aan de voorzijde.

Bijzonderheden:
*de woning is in 2012 geheel gemoderniseerd en vervolgens heel goed onderhouden.
*Alle wanden en plafonds zijn strak gestuukt. De vloer is geïsoleerd en voorzien van vloerverwarming en een mooie pvc vloer. Aan de buitenzijde is dakisolatie aangebracht. De kozijnen zijn alle van hardhout en hebben dubbele beglazing. Groot zonnescherm aan de achterzijde en screens bij de slaapkamers.
*Geweldige tuin rondom het huis! De ligging is zowel zuid, west als noord. Een heel ruime keuze om te zitten en te genieten. Het water, dat grenst aan de tuin geeft rust en vrijheid/weidsheid.
*De tuin is afgescheiden met een hek en een vrijstaande houten schuur. Beide gefundeerd.
*In de garage zijn een vaste kast en een vliering aangebracht. Aan de voorzijde openslaande deuren. De oprit voor de garage biedt ruimte voor het parkeren van 2 auto's.
*Kortom: kom kijken, bied en geniet!

EEN BUNGALOW KOPEN? NEEM JE EIGEN NVM-AANKOOPMAKELAAR MEE!
Plattegronden