Alpha Makelaardij

Nieuwehaven 204
2801 ED GOUDA
Vraagprijs € 289.000,- kosten koper
Omschrijving
Omschrijving
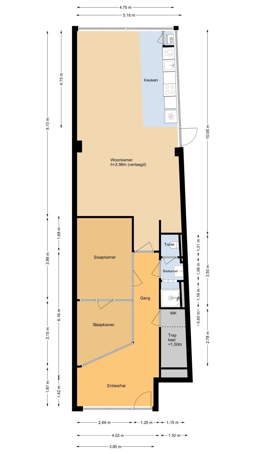
Riante, lichte loft op de begane grond, gelegen in een mooi karakteristieke straat in hartje binnenstad. Het appartement is geheel gelijkvloers en maakt deel uit van een kleinschalig complex van twee woningen. Het pand is goed onderhouden.

Bouwjaar 1972. Het woonoppervlak bedraagt 89 m², de inhoud 328 m³.

De indeling is als volgt:
begane grond: entree, ruime hal annex werkkamer of berging. Trapkast met groepenverdeling en wasmachineaansluiting. Gang met toegang tot de heerlijk ruime, verrassend lichte woonkamer aan de achterzijde. Grote, open keuken voorzien van een kunststof stof aanrechtblad, spoelbak, inductie kookplaat, oven, vaatwasser en veel kastruimte. Kast met daarin de cv-ketel.
In het midden van het pand bevindt zich een grote slaapkamer met aparte walk-in closet. Inpandige badkamer (zwart/wit betegeld) met marmeren vloertegels, douche, wastafel en hangend toilet.

Bijzonderheden:
*de hoge ramen in de woonkamer geven veel licht en bieden tegelijkertijd goed privacy. Buitendeur met melkglas.
*Door de gehele woning is een lichte laminaatvloer aangebracht.
*Het plafond is voorzien van een systeemplafond met inbouwverlichting.
*De wanden zijn deels glad gestuukt en gedeeltelijk uitgevoerd in schoonmetselwerk.
*De afwerking is netjes en eenvoudig.
*Hardhouten en kunststof kozijnen met dubbele beglazing.
*De Vereniging van Eigenaars heeft een collectieve opstalverzekering. Overige servicekosten zijn niet van toepassing.

EEN APPARTEMENT KOPEN? NEEM JE EIGEN NVM-AANKOOPMAKELAAR MEE!
Plattegronden