Alpha Makelaardij

Lange Noodgodsstraat 15
2801 PS GOUDA
Vraagprijs € 350.000,- kosten koper
Omschrijving
Omschrijving
Stijlvol wonen in een modern afgewerkte maisonnette, gelegen in hartje binnenstad met een zonnig dakterras.
Midden in de historische binnenstad van Gouda ligt deze verrassend lichte en modern afgewerkte maisonnette verdeeld over twee woonlagen, met een royaal dakterras. Een fijne plek voor wie comfortabel wil wonen, met de gezelligheid van de stad om de hoek en thuis juist rust en privacy.

De woning is in 2021 volledig gerenoveerd en combineert hedendaags wooncomfort met karakteristieke details, zoals de fraaie erker met glas-in-lood bovenlichten aan de voorzijde. Binnen valt direct de prettige sfeer op: licht, verzorgd en instapklaar.

Met een woonoppervlak van 68 m², een inhoud van 238 m³, twee slaapkamers, een moderne keuken en badkamer én een heerlijk dakterras is dit een compleet en aantrekkelijk stadsappartement.

Bouwjaar 1888.

De indeling is als volgt:
begane grond: entree, ruime hal met meterkast en cv-ruimte. De hal is groot genoeg om een fiets te plaatsen. Trapopgang naar de woonverdieping.
1e verdieping: heerlijk ruime en lichte woonkamer met een karakteristieke erker aan de voorzijde met glas-in-lood bovenlichten en leuk uitzicht naar de Oosthaven en Spieringstraat. De strakke afwerking, lichte vloer en inbouwspots zorgen voor een rustige, moderne en gezellige uitstraling. Aan de achterzijde ligt de moderne open keuken met lichtkoepel en een L-vormig houten werkblad met spoelbak, voorzien van diverse inbouwapparatuur: gaskookplaat, afzuigkap, oven, magnetron, vaatwasser en koel-/vriescombinatie.
Vanuit de keuken is er direct toegang tot het dakterras: een heerlijke plek om in alle rust buiten te zitten, te borrelen of te dineren, een echte verrassing midden in de stad.
Daarnaast bevindt zich een modern toilet met 2 ramen. De trapopgang is afsluitbaar met een stijlvolle houten schuifdeur.
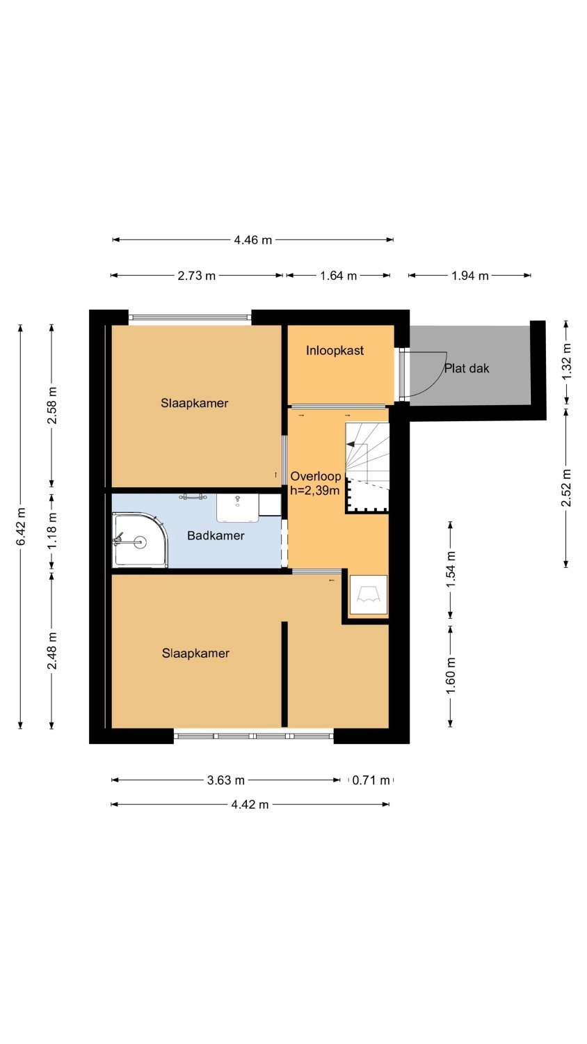
2e verdieping: overloop met wasmachine- en drogeraansluiting en airco-unit. Twee comfortabele slaapkamers aan voor- en achterzijde. De slaapkamer aan de voorzijde is voorzien van een praktische afscheiding. Ideaal voor een bureau of thuiswerkplek. Modern afgewerkte badkamer (geheel betegeld; betonlook) voorzien van een inloopdouche, wastafel met meubel en een designradiator. Daarnaast nog een praktische kleedkamer met louvredeuren en een deur naar een klein balkon.

Bijzonderheden:
*De woning is volledig gerenoveerd in 2021. Het interieur is licht en netjes afgewerkt.
*Airconditioning aanwezig.
*Ruim en rustig dakterras met veel privacy.
*De hal is geschikt voor het stallen van een fiets.
*Super leuke ligging in het centrum met op steenworp afstand de gezellige markt met terrassen en winkels. Het station bevindt zich op 10 minuten loopafstand.
*De Vereniging van Eigenaars is slapend. Wel is een collectieve opstalverzekering aanwezig.

EEN APPARTEMENT KOPEN? NEEM JE EIGEN NVM-AANKOOPMAKELAAR MEE!
Plattegronden