Alpha Makelaardij

Nieuwe Markt 86
2801 GR GOUDA
Vraagprijs € 385.000,- kosten koper
Omschrijving
Omschrijving
**NVM Open Huizen Dag zaterdag 28 maart 2026 van 11.00 uur tot 15.00 uur**

Riante maisonnette met 3 woonlagen, een zonnig dakterras, Franse balkons en een berging. Gelegen op een levendige locatie in hartje binnenstad met aan de voorzijde vrij zicht op een plein. Het appartement is in 2022 aan de binnenzijde gerenoveerd en modern afgewerkt.

Bouwjaar 1979. Het woonoppervlak bedraagt 101 m², de inhoud 290 m³.

De indeling is als volgt:
begane grond: centrale hal met afgesloten entree, trappenhuis en lift.
1e verdieping: privé-entree, hal met (hangend) toilet met fontein, garderobe, meterkast, wasmachineaansluiting en trappenhuis. Gezellige, ruime woonkeuken met openslaande deuren en een Frans balkon. Deze luxe keuken (wit kunststof) is voorzien van een L-vormig aanrechtblad met rvs spoelbak, inductie kookplaat, circulatiekap, oven, vaatwasser, koelkast en vriezer.
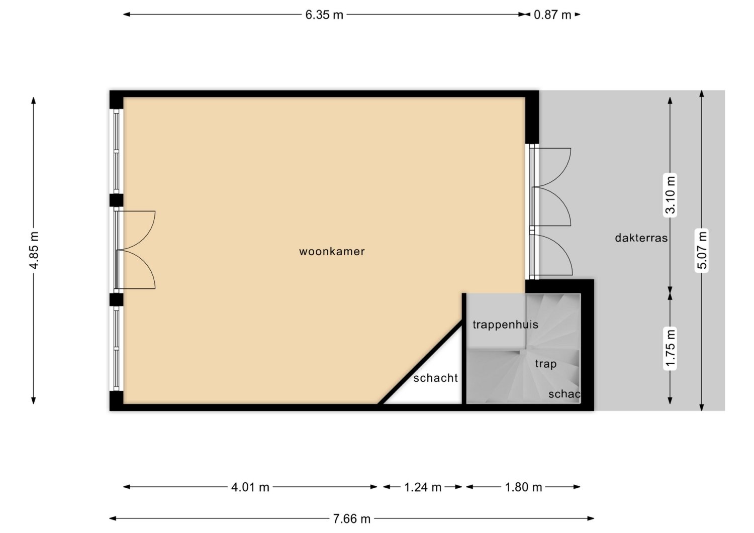
2e verdieping: kleine overloop. Grote, lichte woonkamer met open haard en openslaande deuren naar het dakterras. Aan de voorzijde openslaande deuren met een Frans balkon.
3e verdieping: overloop met toilet en cv-ruimte, een ruime slaapkamer aan de voorzijde en 2e slaap-/studeerkamer aan de achterzijde. Beide slaapkamers hebben de bijzondere, ronde kap in het zicht. Moderne, inpandige badkamer voorzien van inloopdouche, wastafel en designradiator.

Bijzonderheden:
*aan de voorzijde leuk zicht op de Nieuwe Markt en de Agnietenstraat.
*Op alle vloeren is eiken pvc aangebracht. De wanden zijn glad afgewerkt.
*Het dakterras is gesitueerd op het zuid-westen.
*In de onderbouw bevindt zich de grote berging.
*Actieve Vereniging van Eigenaars. De servicekosten bedragen € 223,82 per maand.
*Goede ligging tegenover de Nieuwe Markt Passage. Werkelijk alle winkels en voorzieningen zijn binnen handbereik en het station is op loopafstand.

EEN APPARTEMENT KOPEN? NEEM JE EIGEN NVM-AANKOOPMAKELAAR MEE!
Plattegronden