Alpha Makelaardij

Westhaven 59
2801 PN GOUDA
Vraagprijs € 525.000,- kosten koper
Omschrijving
Omschrijving
**NVM Open Huizen Dag zaterdag 28 maart 2026 van 11.00 uur tot 15.00 uur**

Fraaie bovenwoning op prachtige locatie aan één van Gouda's mooiste grachten!
Deze grote, monumentale woning beschikt over een zonnig dakterras aan de achterzijde en biedt aan de voorzijde een vrij uitzicht over de mooie Oosthaven, richting de Minderbroederssteeg.

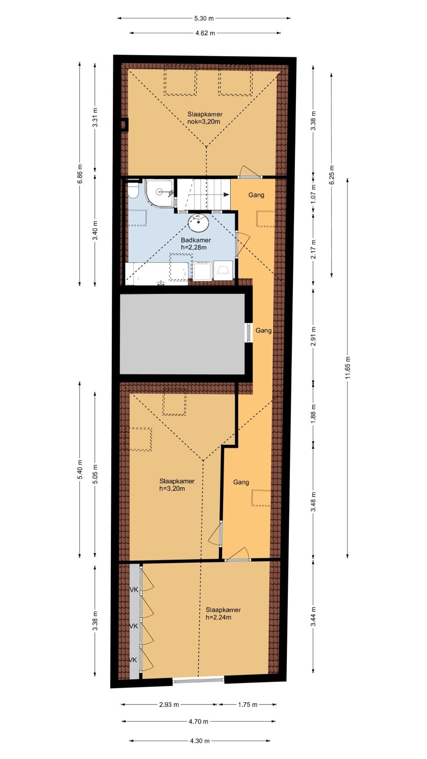
Bouwjaar 1900. Het woonoppervlak bedraagt 155 m², de inhoud 550 m³.

De woning bestaat uit een voor- en een achterhuis, met in het midden een atrium, zodat er een mooie lichtinval is door diverse raampartijen.
De indeling is als volgt:
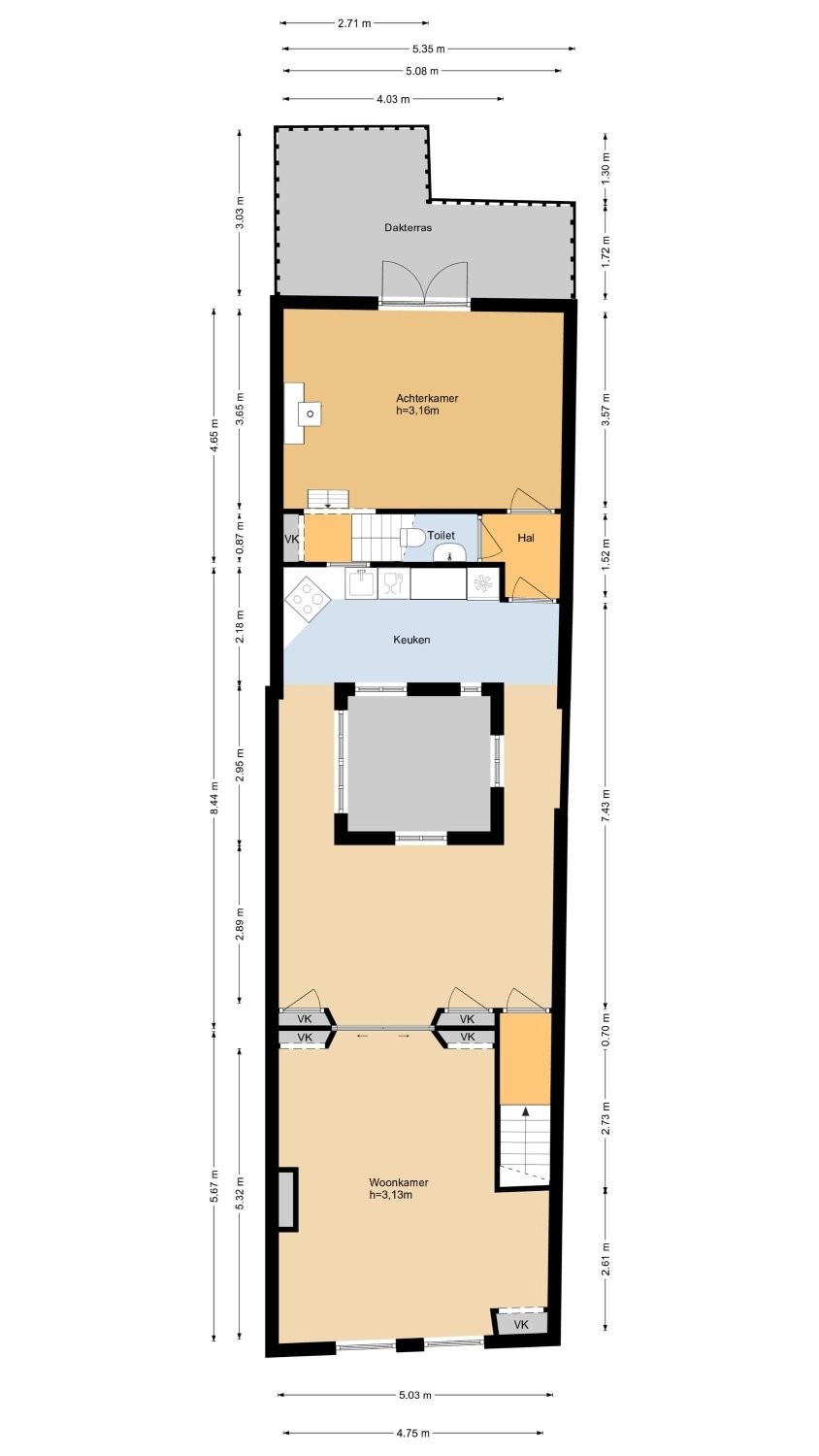
begane grond: entree, hal met meterkast en trapopgang.
1e verdieping: sfeervolle woonkamer aan de voorzijde met origineel stucplafond, ramen met glas-in-lood bovenlichten en een fraaie marmeren schouw, een houten vloer en mooi uitzicht over de gracht. Suite-deuren naar het eetgedeelte met grote ramen en daardoor heerlijk licht!
Keukenruimte met grote ramen. Keukenblok in rechte opstelling met strak rvs blad en voorzien van gaskookplaat, afzuigkap en oven (vernieuwd in 2023). Gang met toiletruimte met hangend toilet en fontein. Grote, lichte slaap- of werkkamer aan de achterzijde. Deze fijne, lichte kamer is voorzien van een schouw met houtkachel, houten vloer en openslaande deuren naar het zonnige dakterras.
Via bordes trap naar de tweede verdieping: overloop, grote slaapkamer aan de achterzijde met houten vloer en twee Velux dakramen. Badkamer met ligbad, wastafel, vernieuwde douchecabine en vernieuwd tweede toilet. De badkamer is geheel wit betegeld en voorzien van een raam en dakraam, in de badkamer tevens de opstelplaats voor de wasapparatuur.
Tussenslaapkamer met twee Velux dakramen. Grote slaapkamer aan de voorzijde met houten vloer, mooie raampartij en zicht op de gracht!
Boven de slaapkamer aan achterzijde en de slaapkamer aan voorzijde is een vliering aanwezig.

Bijzonderheden:
* Riant monumentaal bovenhuis met dakterras, 4 slaapkamers en mooie, hoge plafonds waaronder een prachtig stucplafond in de woonkamer.
* Prachtige ligging aan de Westhaven met vrij zicht op de monumentale "Uiterste brug".
* Het dakterras is gelegen op het zonnige westen.
* De keuken en badkamer zijn wat ouder. De afwerking is eenvoudig. Enig dubbel glas aanwezig alsmede deels gevelisolatie aan binnenzijde. Het schilderwerk aan achterzijde is in 2025 uitgevoerd, in het atrium in 2024 en aan de voorzijde in 2019.
* De Vereniging van Eigenaren is slapend. Er is een collectieve opstalverzekering tezamen met de benedenwoning.
* De oplevering is in overleg.

EEN HUIS KOPEN? NEEM UW EIGEN NVM MAKELAAR MEE!
Plattegronden