Alpha Makelaardij

Karnemelksloot 107
2806 BD GOUDA
Vraagprijs € 425.000,- kosten koper
Omschrijving
Omschrijving
Heb jij twee rechterhanden? Kom dan kijken bij deze ruime (5 kamers!), karakteristieke eengezinswoning met tuin! Een heel fijn huis, waar je, na enig kluswerk, geheel je eigen sfeer aan kunt geven. En daarna kunt genieten van het licht dat door de grote ramen binnenkomt en het zicht op het water van de Karnemelksloot. De gezellige binnenstad en het station bevinden zich op loopafstand.

Bouwjaar 1930. Het woonoppervlak bedraagt 106 m², de inhoud 365 m³. Gelegen op 90 m² eigen grond.

De indeling is als volgt:
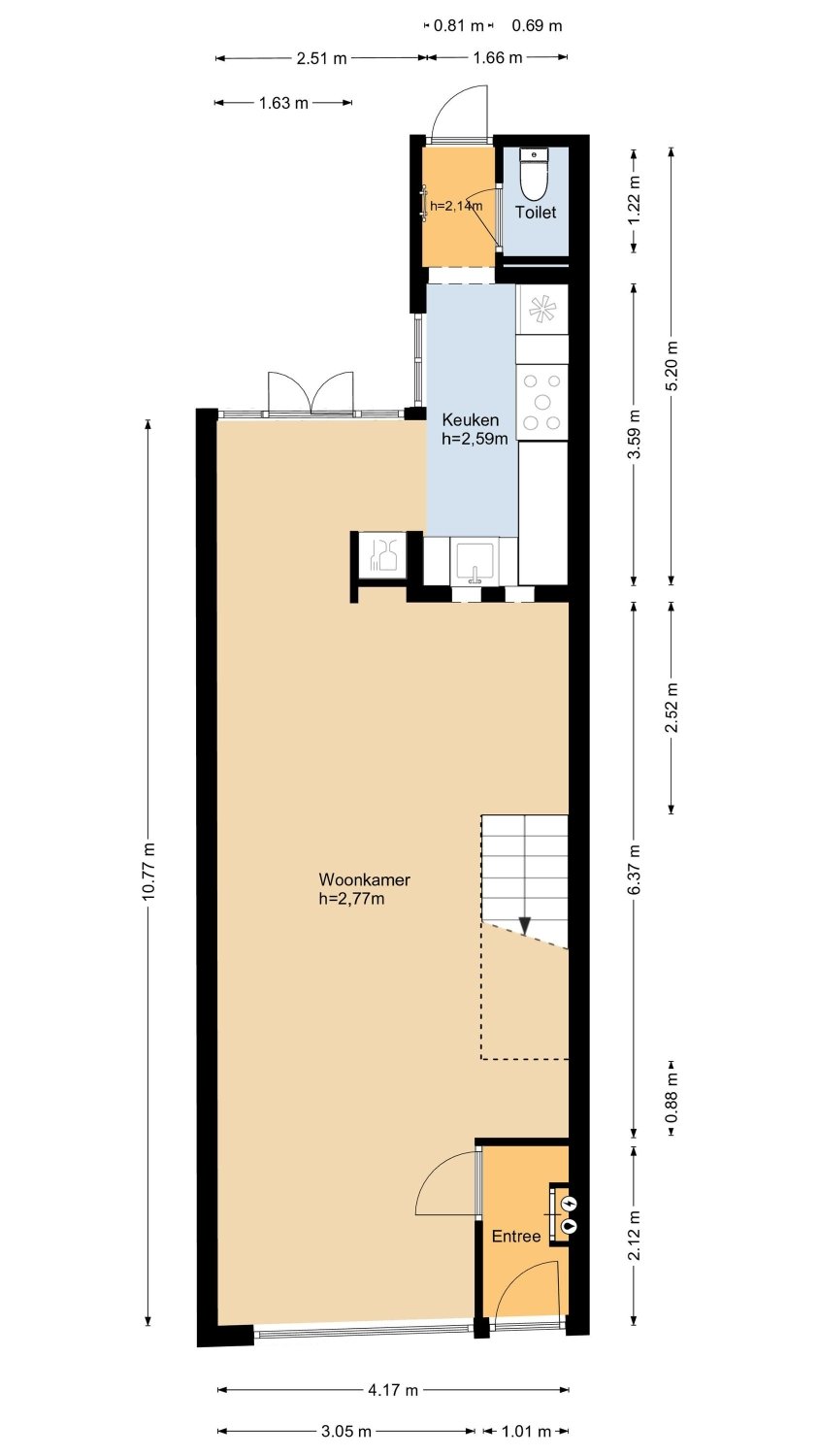
begane grond: entree, hal met meterkast. T-vormige woonkamer een groot raam en glas-in-lood bovenlichten aan de voorzijde. Open trap naar de verdieping, openslaande deuren naar de tuin. Halfopen keuken met een L-vormig aanrechtblad en inbouwapparatuur. Portaal met toilet en de deur naar de achtertuin.
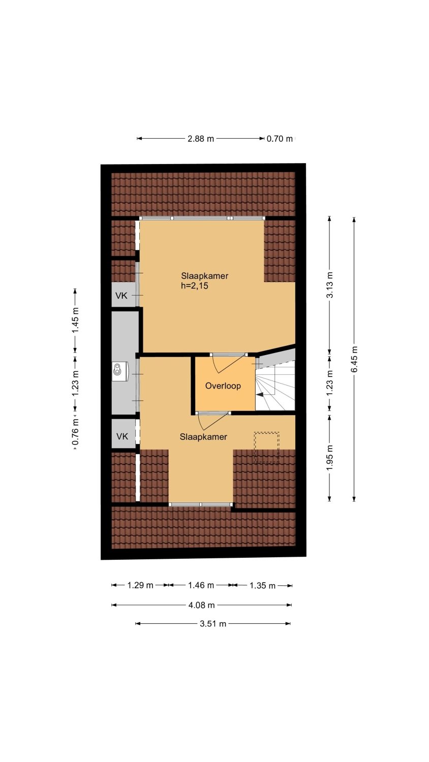
1e verdieping: overloop, slaapkamer voorzijde over de gehele breedte van de woning. Inpandige badkamer (betegeld met Belgisch hardsteen) voorzien van een douche, toilet (Sanibroyeur) en hardstenen wastafel met meubel. Slaap- en kleedkamer aan de achterzijde. Vanuit de kleedkamer is het balkon bereikbaar.
2e verdieping: overloop, ruime slaapkamer aan de achterzijde met dakkapel over nagenoeg de gehele breedte van het huis en met zicht op mooie, oude bomen. Werk-/slaapkamer aan de voorzijde met koekoek, berg- en cv-ruimte.

Bijzonderheden:
*De begane grondvloer dient te worden vernieuwd. De kosten hiervan bedragen circa € 28.000,- inclusief het aanbrengen van isolatie, vloerverwarming en een dekvloer. Op verzoek is een offerte hiervoor ter inzage.
*Semi-open keuken met een L-vormig composiet aanrechtblad, rvs spoelbak, afzuigkap, koelkast en veel kastruimte.
*Leuke, lichte slaapkamers.
*In de kleedkamer bevindt zich de wasmachineaansluiting.
*Mooie, karakteristieke paneel- en schuifdeuren aanwezig.
*De 1e verdieping is voorzien van originele houten vloerdelen. Op de 2e verdieping is laminaat aangebracht.
*De woning is grotendeels voorzien dubbele beglazing. De cv-ketel dateert van 2018.
*Diepe tuin met grote, houten berging en uitgang naar het achtergelegen speelveld.
*Aan voorkant heb je mooi uitzicht op de Karnemelksloot (mét verlichte kerstbomen) en achterzijde kijk je uit op grote bomen met veel groen.

EEN HUIS KOPEN? NEEM JE EIGEN NVM-AANKOOPMAKELAAR MEE!
Plattegronden