Alpha Makelaardij

Achter de Kerk 8 h
2801 JW GOUDA
Vraagprijs € 395.000,- kosten koper
Omschrijving
Omschrijving
Op zoek naar een prachtig gerenoveerde woning op een superplek? Kom kijken bij deze parel!
Dit fraai gerestaureerde appartement heeft een werkelijk uniek uitzicht over het historische marktplein en aan de achterzijde een balkon met zicht op de Sint Janskerk. De woning is gelegen op de tweede verdieping, tussenverdieping en derde verdieping van een fraai Rijksmonument.

Oorspronkelijke bouwjaar 1846, geheel gerenoveerd in 2024/2025. Het woonoppervlak bedraagt 80 m² en de inhoud 254 m³.

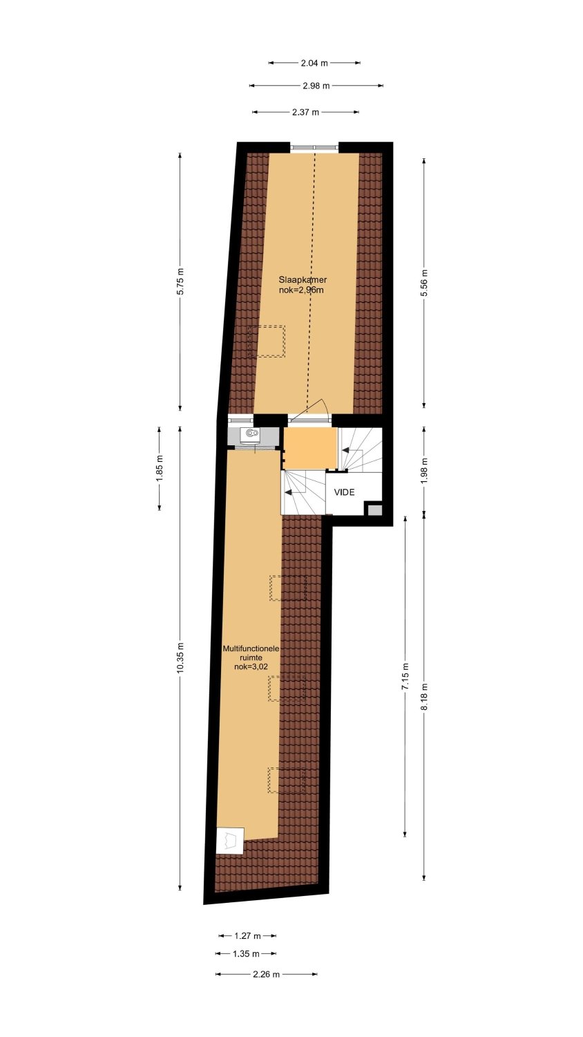
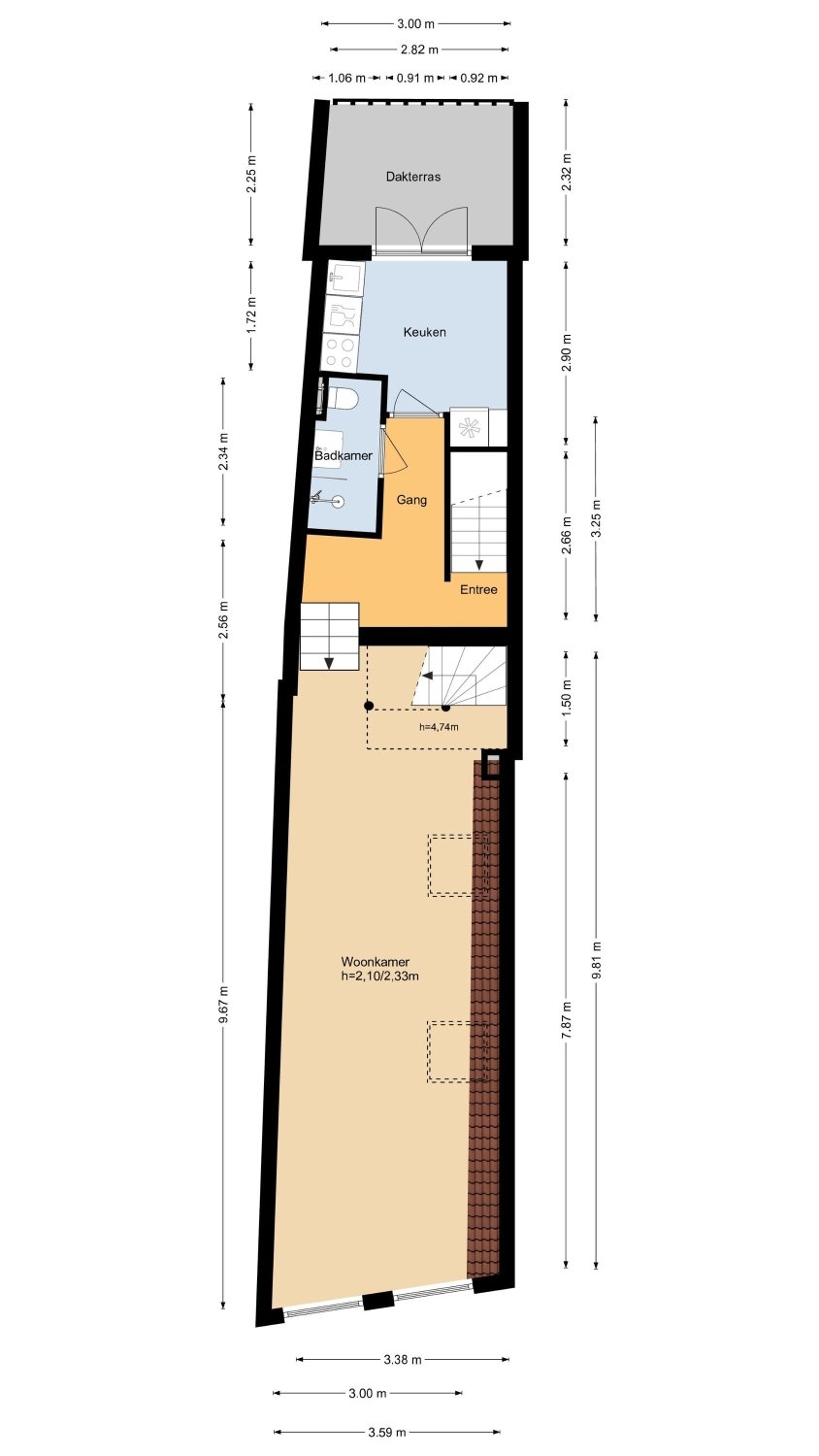
De indeling is als volgt:
begane grond: entree via gezamenlijke hal met de trapopgang.
Via de gemeenschappelijke overloop toegang tot de tweede verdieping.
2e verdieping: privé-entree van de woning, gezellige keuken aan de achterzijde met openslaande deuren naar het balkon. Modern wit keukenblok voorzien van een oven, inductiekookplaat, afzuigkap, vaatwasser en een extra kastblok met koel-/vriescombinatie. Overloop met de badkamer. De badkamer is voorzien van een douche, wastafel met meubel, hangend toilet, sierradiator, grijze tegelvloer en witte wandtegels. Trapje naar de woonkamer waar je bij binnenkomst direct naar het prachtige uitzicht wordt getrokken! De woonkamer heeft een prachtig balkenplafond, licht eiken visgraat pvc vloer, dakramen en grote raampartijen met geweldig uitzicht op de Markt.
Tussenverdieping: mooie, grote slaapkamer met zicht op de nok, dakraam en licht eiken visgraat pvc vloer.
3e verdieping: open zolderruimte/slaap-/werkkamer onder het dak, voorzien van drie Velux dakramen, opstelplaats voor de wasapparatuur en de cv-ruimte.

Bijzonderheden:
*Prachtige, moderne afwerking met onder andere een visgraat pvc-vloer, strak gestuukte wanden en plafonds en luxe inbouwverlichting.
*Uniek uitzicht op de Markt en de Sint Jan.
*Monumentaal balkenplafond in de woonkamer.
*De woning is volledig geïsoleerd en heeft de beschikking over een energielabel B.
*Al het leidingwerk is vernieuwd en er is een nieuwe cv-installatie aangebracht.
*Geweldige locatie midden in het historische centrum van Gouda aan de Markt met het beroemde stadhuis, alle gezellige restaurants en uitgaansgelegenheden. De schouwburg, Cinema en het NS-station bevinden zich op loopafstand.
*Betaald parkeren en parkeervergunning met wachtlijst mogelijk.
*Het pand is aangewezen als Rijksmonument en gelegen in een gebied, dat is aangewezen als Beschermd Stadsgezicht.
*De Vereniging van Eigenaren is nog niet geactiveerd, er zijn derhalve nog geen servicekosten van toepassing. De premie voor de collectieve opstalverzekering dient maandelijks te worden voldaan aan de Vereniging van Eigenaren.

EEN HUIS KOPEN? NEEM JE EIGEN NVM-AANKOOPMAKELAAR MEE!
Plattegronden