Alpha Makelaardij

Punt 15
2801 PZ GOUDA
Vraagprijs € 800.000,- kosten koper
Omschrijving
Omschrijving
Bijzonder fraai gerestaureerd pand op unieke locatie aan het monumentale Houtmanplantsoen. Dit fraaie Gemeentelijke Monument is gebouwd op een historische locatie, waar vroeger het kasteel van Gouda was gelegen, met als de bekendste bewoner uit deze periode ongetwijfeld Jacoba van Beieren (1401-1436), de gravin van Holland. Het uitzicht op het park is uniek!

Bouwjaar 1901, het woonoppervlak bedraagt 210 m² (verdeeld over vier lagen) en de inhoud 725 m³. Gelegen op 82 m² eigen grond.

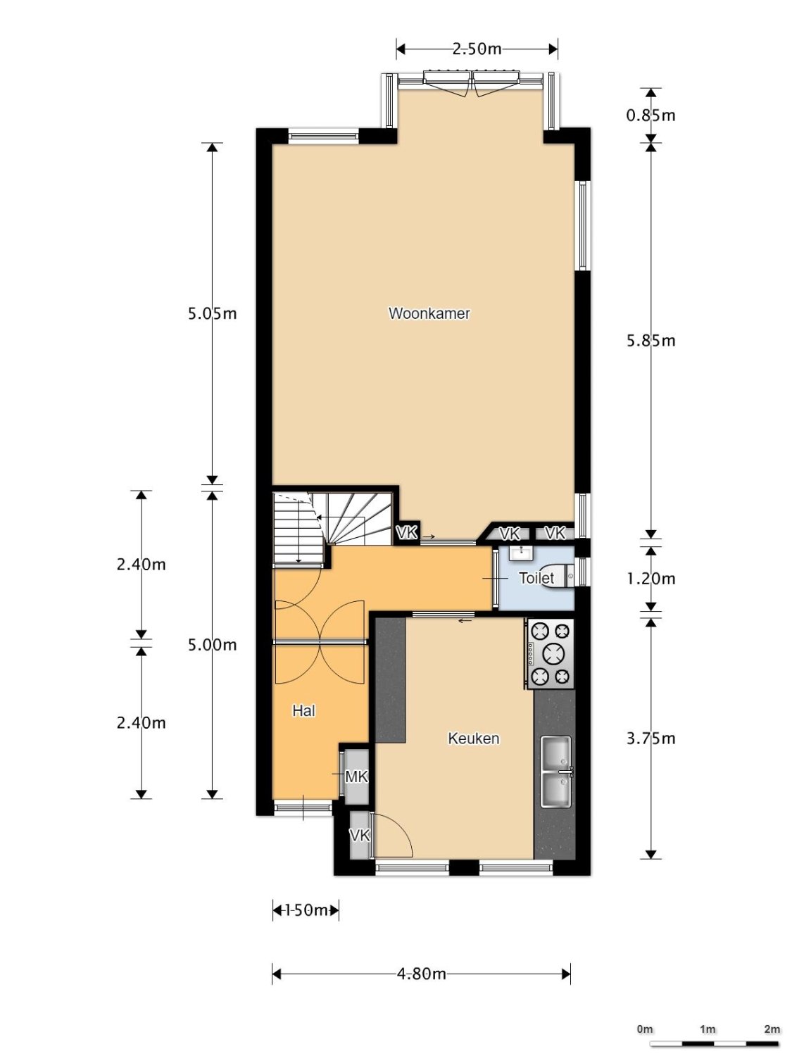
De indeling is als volgt:
Bel-etage: entree, vestibule, gang met luxe toilet met fontein. Woonkeuken aan de voorzijde met luxe keuken in lichte kleurstelling met donker granieten blad, 5 pits gaskookplaat met wokbrander (2017), afzuigkap, oven en magnetron, bordenwarmer, koelkast/vriezer en vaatwasser. De keuken is voorzien van een mooie, lichte stenen vloer die doorloopt in de hal en vestibule. Aan de achterzijde bevindt zich de woonkamer met mooie kastenpartij, hoog stucplafond, matte, eiken visgraat parketvloer met bies, zijraam en fraaie erker met prachtige raampartij en Frans balkon met een overweldigend uitzicht op het park!

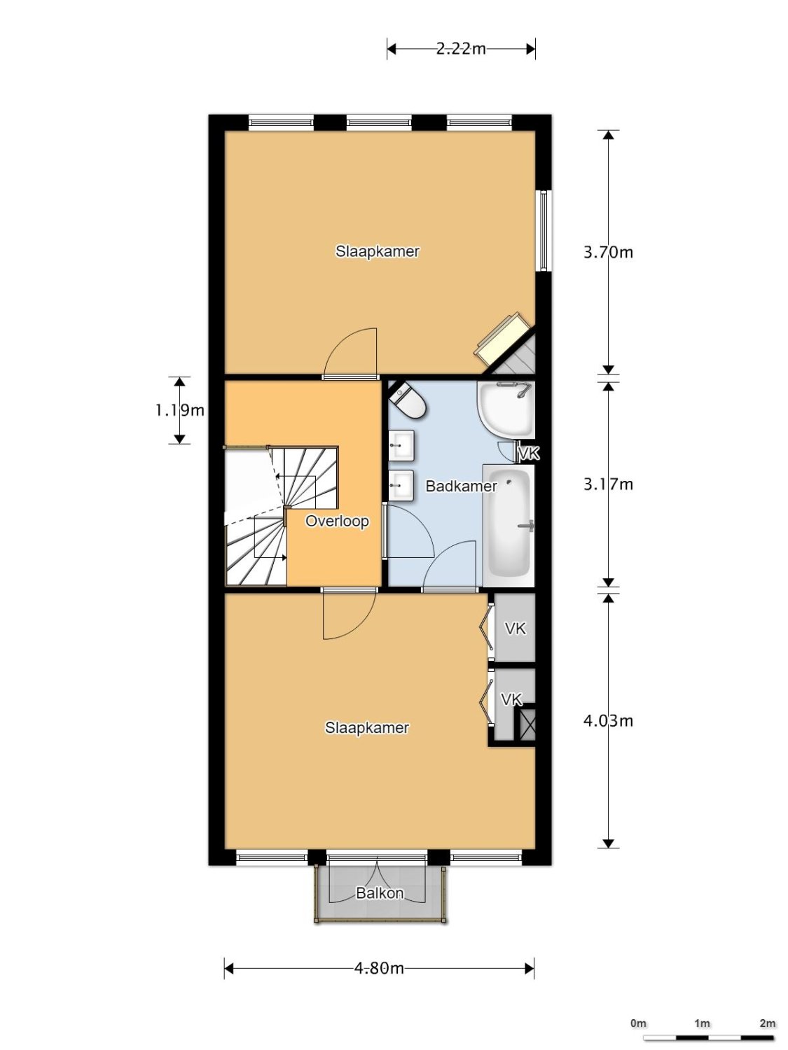
1e verdieping: overloop, mooie, grote slaapkamer aan de voorzijde met eikenhouten vloer, hoog balkenplafond, ruim balkon met openslaande deuren en vrij uitzicht richting de rivier de Hollandse IJssel. Vanuit deze kamer is er toegang tot de badkamer. De badkamer is eveneens toegankelijk via de overloop.
De luxe afgewerkte badkamer is voorzien van ligbad, douche, toilet, dubbele wastafel, sierradiator, vloerverwarming en luxe, getrommeld marmeren betegeling en een donkere plavuizenvloer. Fraaie werk-/slaapkamer aan de achterzijde met eikenhouten vloer, zandstenen schouw met gashaard (2007) en grote raampartijen met een fenomenaal uitzicht op het park.

2e verdieping: ruime overloop met groot Velux dakraam, vaste kasten op maat, betegelde was-/cv-ruimte met aansluiting wasmachine en plaats droger alsmede recent vernieuwde cv-ketel (Vaillant, 2021). Slaapkamer aan de achterzijde met 2 grote Velux dakramen en 2 schuiframen met prachtig uitzicht op het park, korenmolen ‘t Slot en over de Goudse binnenstad. Slaapkamer aan de voorzijde met dakkapel en Velux dakraam. Tussengelegen badkamer II in mooie uitvoering met douche, toilet en wastafel. De tweede verdieping is eveneens voorzien van een eikenhouten vloer.

Souterrain: in het souterrain bevindt zich een grote werkruimte met pantry, toilet, raampartijen aan achterzijde richting het Houtmanplantsoen en in de zijgevel, waar ook een deur is naar de eigen bestrate zijtuin. Naast de zijtuin, aan de parkzijde, is een trap naar de voorzijde, waar de eigenaar parkeert. Aan de voorzijde van het souterrain is een ruime kamer/berging met hoog geplaatste raampjes naar de straatzijde. Onder de woningen aan de Punt bevinden zich de kasteelgewelven (niet toegankelijk).

Bijzonderheden:
* Vanaf 2007 is de woning op een stijlvolle wijze gerestaureerd, waarbij gebruik is gemaakt van mooie, goede materialen. O.a. het leidingwerk is vernieuwd, keuken, badkamers, toilet, afwerking vloeren/wanden/plafonds, vernieuwde mooie lichteiken houten trappen en de afwerking van het souterrain.
* Dit fraaie herenhuis biedt verrassend veel ruimte. Het betreft hier een dijkwoning, waar je met name aan de parkkant goed de grootte van het object kunt zien.
* Het buitenschilderwerk aan de voorzijde is in 2024 uitgevoerd.
* recent (2025) is de fundering preventief verstevigd.
* Unieke ligging aan het park. In de zomer worden in het Houtmanplantsoen zondagmiddag concerten in het prieel gegeven, een feest om naar te kijken!
* De gezellige Markt met het wereldberoemde stadhuis is nabijgelegen, evenals alle voorzieningen van het centrum, openbaar vervoer (NS station) en de uitvalswegen naar de omliggende steden.
* De oplevering is op korte termijn mogelijk.
EEN HUIS KOPEN? NEEM UW EIGEN NVM-MAKELAAR MEE!
Plattegronden