Alpha Makelaardij

Korte Groenendaal 2 b
2801 JN GOUDA
Vraagprijs € 279.500,- kosten koper
Omschrijving
Omschrijving
Wat een parel! Geheel gerenoveerd, instapklaar 2-kamer appartement met luxe keuken en badkamer, energielabel A en een fantastisch dakterras met uitzicht over de historische binnenstad!

Bouwjaar circa 1830, gerenoveerd in 2019, het woonoppervlak bedraagt 45 m² en de inhoud 162 m³.

De indeling is als volgt:
Begane grond: afgesloten, gezamenlijk entree, hal en trappenhuis.
1e Verdieping: entree privé gedeelte, trap naar de 2e verdieping.
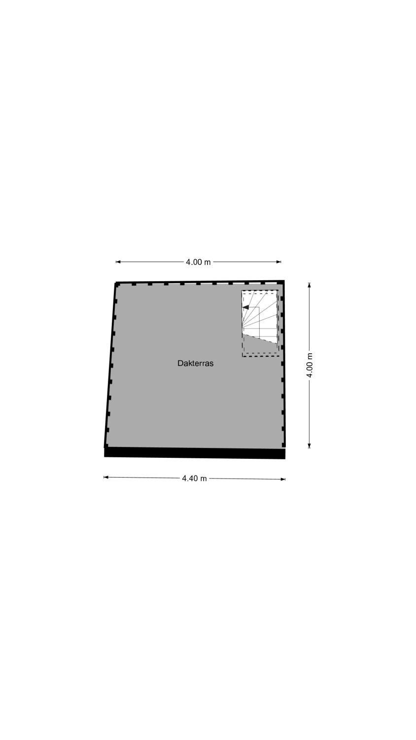
2e Verdieping: hal met luxe toiletruimte met hangend toilet en fontein. In het toilet bevindt zich een wandkast met opstelling cv-ketel. Toegang tot de lichte, brede woonkamer met grote ramen met glas-in-lood bovenlichten. Luxe open keuken met lichtkoepel. De keuken is in rechte opstelling en voorzien van inductiekookplaat, rvs-afzuigkap, combimagnetron, vaatwasser, koel-/vriescombinatie en veel bergruimte. Vanuit de woonkamer toegang tot het dakterras op de bovenste verdieping met spectaculair uitzicht op de Goudse binnenstad!
Goede slaapkamer aan de achterzijde met pvc vloer. De lichte, luxe badkamer beschikt over een inloopdouche met strakke glazen douchewand, wastafelmeubel met spiegelkast en een sierradiator.

Bijzonderheden:
* Het appartement wordt turn key opgeleverd: de woning is gestoffeerd en geheel voorzien van een moderne licht eiken pvc vloer en lichte, glad gestucte wandafwerking.
* Moderne, luxe keuken en badkamer.
* Via een trap in de woonkamer is het dakterras te bereiken. Vanaf het dakterras een geweldig uitzicht over de Goudse binnenstad richting de Markt!
* De Vereniging van Eigenaren is slapend. Er is een collectieve opstalverzekering en een inschrijving bij de Kamer van Koophandel.
* De woning heeft de beschikking over eigen tussenmeters. Het voorschot voor gas, water en elektra bedraagt € 100,- per maand. Glasvezel aanwezig.
* Betaald parkeren (geen parkeervergunning).
* Gelegen op een geweldige locatie in hartje binnenstad! De Markt met het prachtige stadhuis en de terrassen, de winkels en het NS station zijn op loopafstand!
* Oplevering op korte termijn, de woning is reeds leeg.

EEN HUIS KOPEN? NEEM JE EIGEN NVM MAKELAAR MEE!
Plattegronden