Alpha Makelaardij

Spieringstraat 59
2801 ZH GOUDA
Vraagprijs € 500.000,- kosten koper
Omschrijving
Omschrijving
**NVM Open Huizen Dag zaterdag 28 maart 2026 van 11.00 uur tot 15.00 uur**
*OPEN HUIS ACTIE: BIEDEN VANAF € 500.000,- K.K.*

Romantische, bijzonder sfeervolle binnenstadswoning (hoek) met een mooi aangelegde tuin, nieuwe, grote schuur en een achterom. Dit fraai karakteristieke Gemeentelijk Monument is goed onderhouden en ademt een fijne, warme sfeer uit. Gelegen in een mooie straat met veel bomen en een gracht, op steenworp afstand van de Markt.

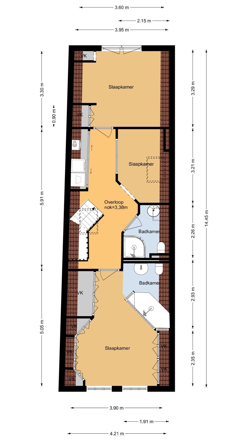
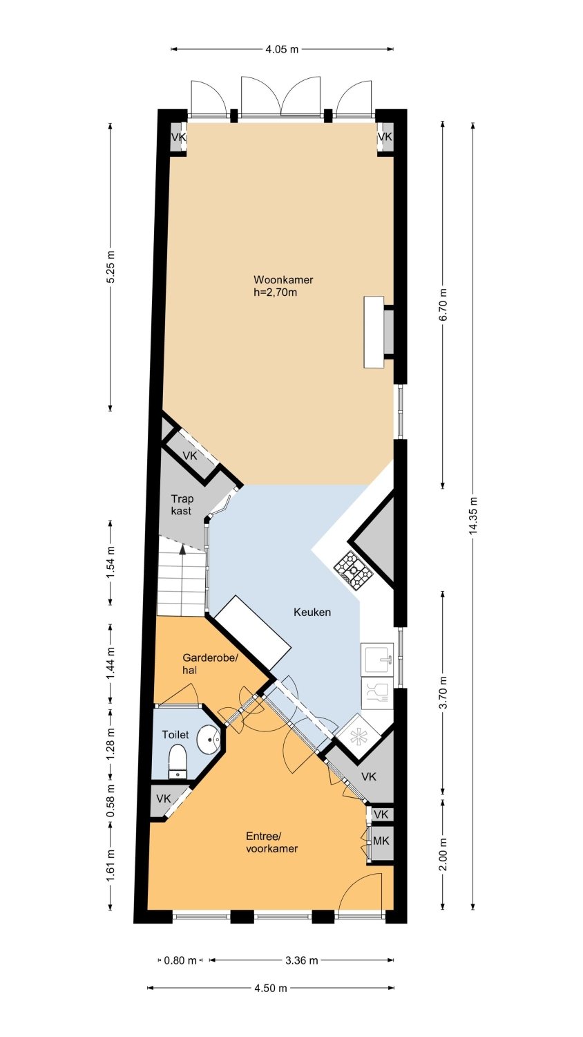
Bouwjaar 1880. Het woonoppervlak bedraagt 116 m², de inhoud 368 m³. Gelegen op 97 m² eigen grond.

De indeling is als volgt:
begane grond: entree, hal annex werkkamer met veel vaste kasten, glas-in-lood deur met toegang tot een portaal met toilet en trapopgang. Openslaande deuren met glas-in-lood naar de keuken, die zich in het midden van deze verdieping bevindt. Zijraam, Caesarstone aanrechtbladen (steenrood) met rvs spoelbak, close-in boiler, vaatwasser, koelkast, combi-magnetron, 5 pitsgaskookplaat, oven, afzuigkap, kastenwand met vriezer. Leuke bar met bijzonder draaikastje in de wand. Onder/achter de bar bevindt zich veel bergruimte.
Heel gezellige, ruime woonkamer met houten schouw en gashaard, zijraam, airco-unit, convectorput en openslaande deuren en loopdeuren naar de tuin.'
1e verdieping: overloop met Velux dakraam en een schuifkastenwand voorzien van een wasmachineaansluiting en de cv-ketel (2018). Grote slaapkamer aan de voorzijde met vaste kasten, airco en een eigen semi-open badkamer I, die is voorzien van een ligbad, wastafel met meubel en toilet. Slaapkamer in het midden met Velux dakraam, badkamer II met douchecabine, wastafel met meubel, een bidet en een Velux raam. Ruime slaapkamer aan de achterzijde met openslaande deuren en een Frans balkon.

Bijzonderheden:
*de begane grond is gedeeltelijk voorzien van een lichte plavuizenvloer met vloerverwarming. Aan de achterzijde is een eiken parketvloer aangebracht.
*Fijne, lichte woonkamer met balkenplafond. Op de 1e verdieping zijn de mooie kap met boogspanten in het zicht gehouden.
*In 1990 heeft een grote verbouwing plaatsgevonden: de kozijnen zijn grotendeels vernieuwd (hardhout) en zijn voorzien van dubbele beglazing.
*In de woonkamer en de slaapkamer aan de voorzijde hangen airco-units, die kunnen koelen en verwarmen.
*De fraaie tuin is in 2023 opnieuw aangelegd en zijn een nieuwe schuur en schutting geplaatst. Via de schuur kom je uit op een kleine parkeerplaats.
*Het pand is aangewezen als Gemeentelijk Monument en is gelegen in een gebied, dat is aangewezen als Beschermd Stadsgezicht.
*Kom gauw kijken en laat je verrassen door de ruimte en het licht!

EEN HUIS KOPEN? NEEM JE EIGEN NVM-AANKOOPMAKELAAR MEE!
Plattegronden