Achter de Vismarkt 98
2801 ND GOUDA
Vraagprijs € 475.000,- kosten koper

Omschrijving
Omschrijving
Superleuk en licht binnenstadshuis met tuin, dakterras en schuur. De woning is goed onderhouden, heeft een warme sfeer en biedt verrassend veel ruimte. Gelegen in één van de gezelligste straten van de binnenstad. Op de stoepen zijn verschillende "tuinen" gecreëerd.Bouwjaar 1903. Het woonoppervlakte bedraagt 104 m², de inhoud 314 m². Gelegen op 70 m² eigen grond.
De indeling is als volgt:
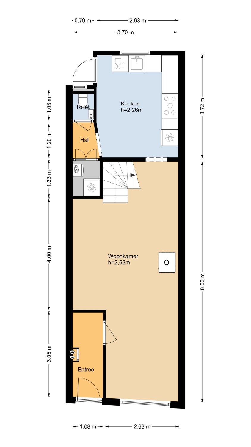
begane grond: entree, hal met meterkast en mooie, oude plavuizenvloer. Heerlijk lichte, ruime woonkamer met een mooie houtkachel, houten lambrisering en doorgang naar de gezellige woonkeuken aan de achterzijde. De keuken is voorzien van een L-vormig Belgisch hardstenen blad, spoelbak met luxe Quooker-kraan (inclusief bruiswater), 5-pitsgaskookplaat, afzuigkap, combi oven met stoomoven, vaatwasser, koelkast met vriesvak en deur naar de tuin. Portaal met cv-ketel (2018). Toilet (hangend) met fontein en raampje.
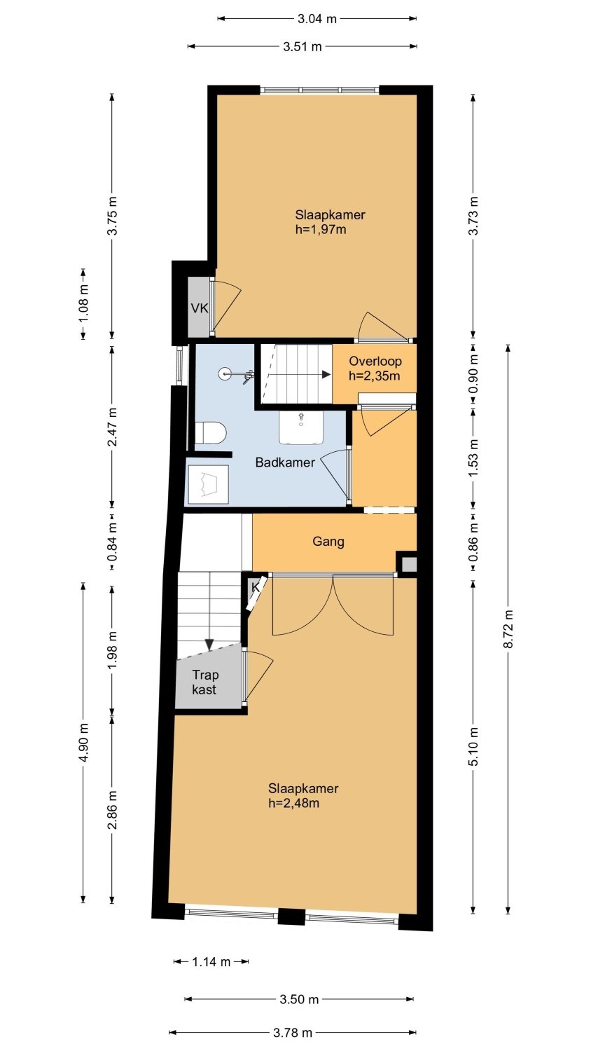
1e verdieping: overloop, lichte slaapkamer aan achterzijde met laminaatvloer, inbouwspots en vaste kast. Eenvoudige badkamer met wastafel met meubel, douche, hangend toilet, designradiator en wasmachineaansluiting. Gang met originele openslaande paneeldeuren naar de grote slaapkamer aan de voorzijde (voorheen twee kamers) met vast kast, airconditioning en schuiframen.
2e verdieping: overloop, werkruimte met Velux dakraam en bergruimte achter de knieschotten. Leuke slaapkamer aan achterzijde met nis, Velux dakraam en laminaatvloer.
Bijzonderheden:
*Woonkamer met massief eiken vloerdelen. De keuken is voorzien van hardstenen plavuizen.
*De wanden zijn afgewerkt met glad stucwerk en spachtelputz. Het plafond is glad gestuukt.
*De houtkachel is circa 3 jaar gelegen aangebracht.
*Beschut gelegen tuin gesitueerd op het noordwesten met trap naar het zonnige dakterras (gelegen op de berging), omringd door groen.
*Stenen berging voorzien van elektra en achterom.
*Mooi karakteristieke gevel met grote ramen.
*Kom gauw sfeer proeven!
EEN HUIS KOPEN? NEEM JE EIGEN NVM-AANKOOPMAKELAAR MEE!
Brochure
Brochure
Plattegronden