Hoefsteeg 1
2801 ZS GOUDA
Vraagprijs € 375.000,- kosten koper

Omschrijving
Omschrijving
Gaaf, groot bovenhuis met veel potentie! Gelegen op de hoek Hoefsteeg/Spieringstraat. De openslaande deuren met Frans balkon bieden zicht op de gracht en mooie oude bomen. Goede ligging in een rustige straat nabij het Houtmansplantsoen en de gezellige Markt. De afwerking is goed en eenvoudig. Bouwjaar 1900. Het woonoppervlak bedraagt 95 m², de inhoud 333 m³.
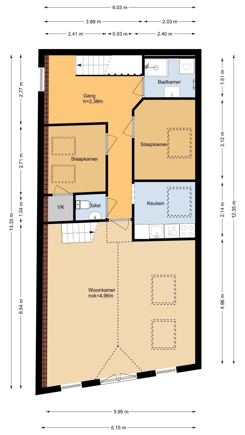
De indeling is als volgt:
begane grond: entree, hal met meterkast en (fietsen)berging. Trapopgang naar de...
1e verdieping: ruime overloop met toilet. Aan de voorzijde bevindt zich de geweldige, lichte woonkamer met de hoge nok van bijna 5 meter (!) in het zicht, 2 Velux dakramen, 2 gietijzeren stalramen en openslaande deuren met Frans balkon. Trap naar een entresol.
Verder een aparte, eenvoudige keuken met Velux dakraam, kunststof aanrechtblad, 1,5 rvs spoelbak, inductie kookplaat, afzuigkap, combi-magnetron en vaatwasser. Twee slaapkamers, beide met dakramen en één met vaste kast. Eenvoudige, inpandige badkamer voorzien van een douchecabine, wastafel, designradiator en wasmachineaansluiting.
Entresol: open, multifunctionele ruimte met Velux dakraam. Deze ruimte is lange tijd als slaapvertrek gebruikt. Luik naar berg-/cv-ruimte.
Bijzonderheden:
*De ligging op de hoek van 2 straten biedt veel privacy de woning.
*Het huis heeft een goede basisafwerking en kan met slechts de juiste "make-up" tot een fijne, eigentijdse loftwoning worden getransformeerd.
*De vloeren zijn voorzien van laminaat.
*Het pand is recentelijk gesplitst in appartementsrechten. Op de begane grond bevindt zich een opslagruimte/garage. De Vereniging van Eigenaars is in oprichting. Een collectieve opstalverzekering is aanwezig.
EEN BOVENHUIS KOPEN? NEEM JE EIGEN NVM-AANKOOPMAKELAAR MEE!
Brochure
Brochure
Plattegronden