Jan Philipsweg 31
2802 NW GOUDA
Vraagprijs € 300.000,- kosten koper

Omschrijving
Omschrijving
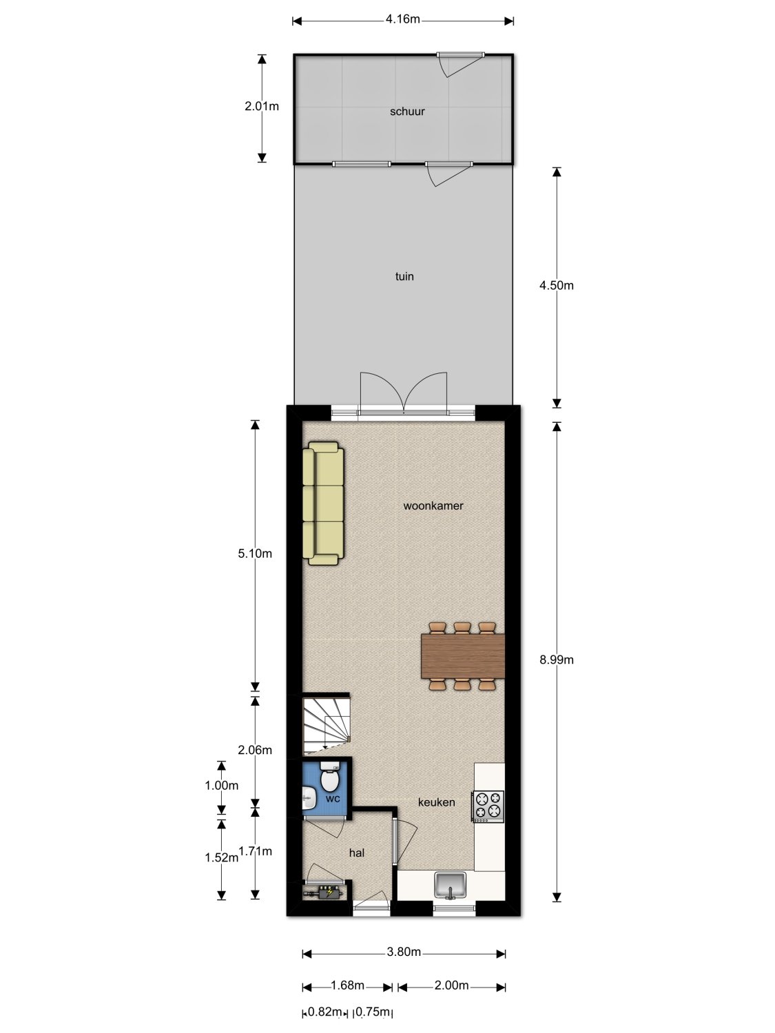
Heel sfeervolle, lichte tussenwoning met uitbouw, balkon en een zonnige tuin met grote schuur. Laat je verrassen door de ruimte achter deze karakteristieke gevel. De woning is netjes onderhouden. Fijn gelegen in een leuke straat, op loopafstand van het gezellige centrum. Bouwjaar 1925. Het woonoppervlak bedraagt 58 m², de inhoud 202 m³. Gelegen op 85 m² eigen grond.
De indeling is als volgt:
begane grond: entree, hal met meterkast en toilet (hangend) + fontein. Semi-open keuken met L-vormig kunststof aanrechtblad, rvs spoelbak, gaskookplaat, afzuigkap, oven, koelkast, vriezer en close-in boiler. Grote, lichte woonkamer met ramen van plafond tot vloer en openslaande deuren naar de tuin.
1e verdieping: overloop, slaapkamer achterzijde met vaste kast met louvredeuren, toegang tot het balkon. Inpandige badkamer voorzien van een ligbad, hangend toilet, wastafel en een designradiator. Schattige L-vormige slaapkamer aan de voorzijde met Velux dakraam en vliering met veel bergruimte (bereikbaar via een vlizotrap).
Tweede vliering met cv-ketel, ook voorzien van een vlizotrap vanaf de overloop.
Bijzonderheden:
*Door de uitbouw is een heel fijne, grote woonkamer ontstaan.
*Betonnen begane grondvloer met een lichte laminaatvloer. De wanden zijn afgewerkt met spachtelputz.
*Heerlijke tuin, gesitueerd op het zuidoosten. Hier kun je lekker lang van de zon genieten.
*Aan de achterzijde bevindt zich de grote, houten berging met elektra en achterom via dubbele deuren. Je kunt hier met gemak fietsen en een motor stallen.
*Het huis is voorzien van dubbele beglazing, dak-, vloer- en muurisolatie, alsmede 3 zonnepanelen.
*Kom kijken, biedt en geniet!
EEN HUIS KOPEN? NEEM JE EIGEN NVM-AANKOOPMAKELAAR MEE!
Brochure
Brochure
Plattegronden