Nonnenwater 12
2801 VA GOUDA
Vraagprijs € 650.000,- kosten koper

Omschrijving
Omschrijving
Ruime en lichte stadsvilla met een mooi karakteristieke uitstraling en achter de gevel alle comfort van nu. Aan de achterzijde een grote daktuin. Door de kamer op de begane grond tevens geschikt voor de combinatie wonen en werken. Ideale ligging aan de rand van de binnenstad op loopafstand van alle voorzieningen. Bouwjaar 2015. Het woonoppervlak bedraagt 143 m², de inhoud 543 m³.
De indeling is als volgt:
begane grond: entree, hal met meterkast, toilet (hangend) + fontein, werk-/slaapkamer met chipwood vloer (grijs) en bergruimte. Bordestrap naar de...
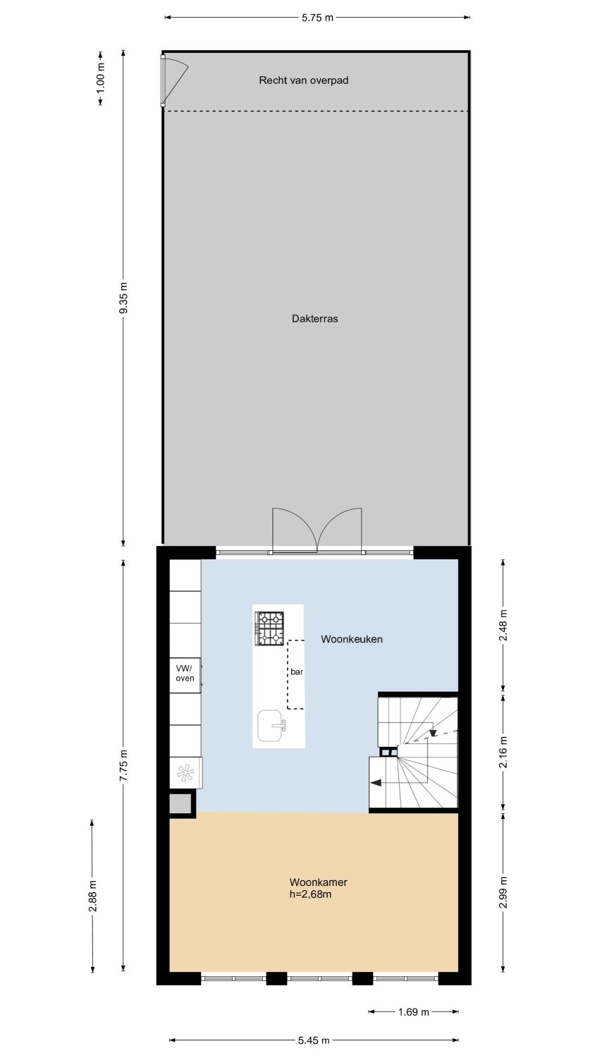
1e verdieping: heerlijk ruime en lichte woonkamer en woonkeuken. De woonkamer heeft 3 grote ramen aan de voorzijde en biedt zicht op historische panden en links op de gracht en bomen. In de woonkeuken is een kookeiland aangebracht, dat is voorzien van een kookeiland (wit hoogglans) met bar, Bora inductie kookplaat met geïntegreerde recirculatiekap, veel laden en een rvs spoelbak. Wand waarin zich de vaatwasser, combi-oven, grote koel-/vriescombinatie en bergruimte bevinden. Deze wand is "afsluitbaar" middels licht eiken panelen. Eethoek met grote ramen en openslaande deuren naar de daktuin.
2e verdieping: overloop met toilet (hang), moderne badkamer (wit/antraciet betegeld) met inloopdouche, brede wastafel, designradiator en raam. Slaapkamer aan de voorzijde over de volle breedte van de woning en voorzien van 3 ramen. De slaapkamer aan de achterzijde heeft 2 grote ramen.
3e verdieping: riante open ruimte, van de trap af te sluiten middels een aluminium met glazen schuifdeur. Hier bevindt zich een enorme slaapkamer met een nokhoogte van bijna 4 meter! Vanuit hier heb je prachtig uitzicht op de binnenstad. Aparte was-/berg-/cv-ruimte.
Bijzonderheden:
*Geweldige daktuin/terras aan de achterzijde van de woning. De tuin is voorzien van mooie bakken met veel planten en groen. 's Zomers kun je hier van circa 11.00 tot 19.00 uur van de zon genieten.
*Op de 1e verdieping liggen grote plavuizen ("leien") met vloerverwarming. De 2e en 3e verdieping hebben licht "eiken" laminaatvloeren.
*De wanden zijn alle glas afgewerkt met renovlies.
*Het huis is gesitueerd op een hoek.
*In 2024 zijn de kozijnen in de voorgevel geschilderd, in 2025 de kozijnen aan de binnenzijde en in 2021 zijn 6 zonnepanelen aangebracht.
*De woning is goed onderhouden en heel goed geïsoleerd.
*Op de begane grond bevindt zich een aparte fietsenberging van 3 m².
*Het pand maakt onderdeel uit van een VvE. De servicekosten bedragen € 75,- per maand. Dit dient voor de opstalverzekering en een klein gedeelte als reservefonds.
*In de nabijgelegen parkeergarage Bolwerk kan voor 50% van het reguliere tarief een abonnement voor parkeren worden gekocht. Dit komt neer op circa € 103,50 per maand.
EEN HUIS KOPEN? NEEM JE EIGEN NVM-AANKOOPMAKELAAR MEE!
Brochure
Brochure
Plattegronden