Raaphorstpolderweg 12                
                
                    2807 ML GOUDA                
            
                                    Vraagprijs € 475.000,-  kosten koper
                                
         
                        Omschrijving
                    Omschrijving
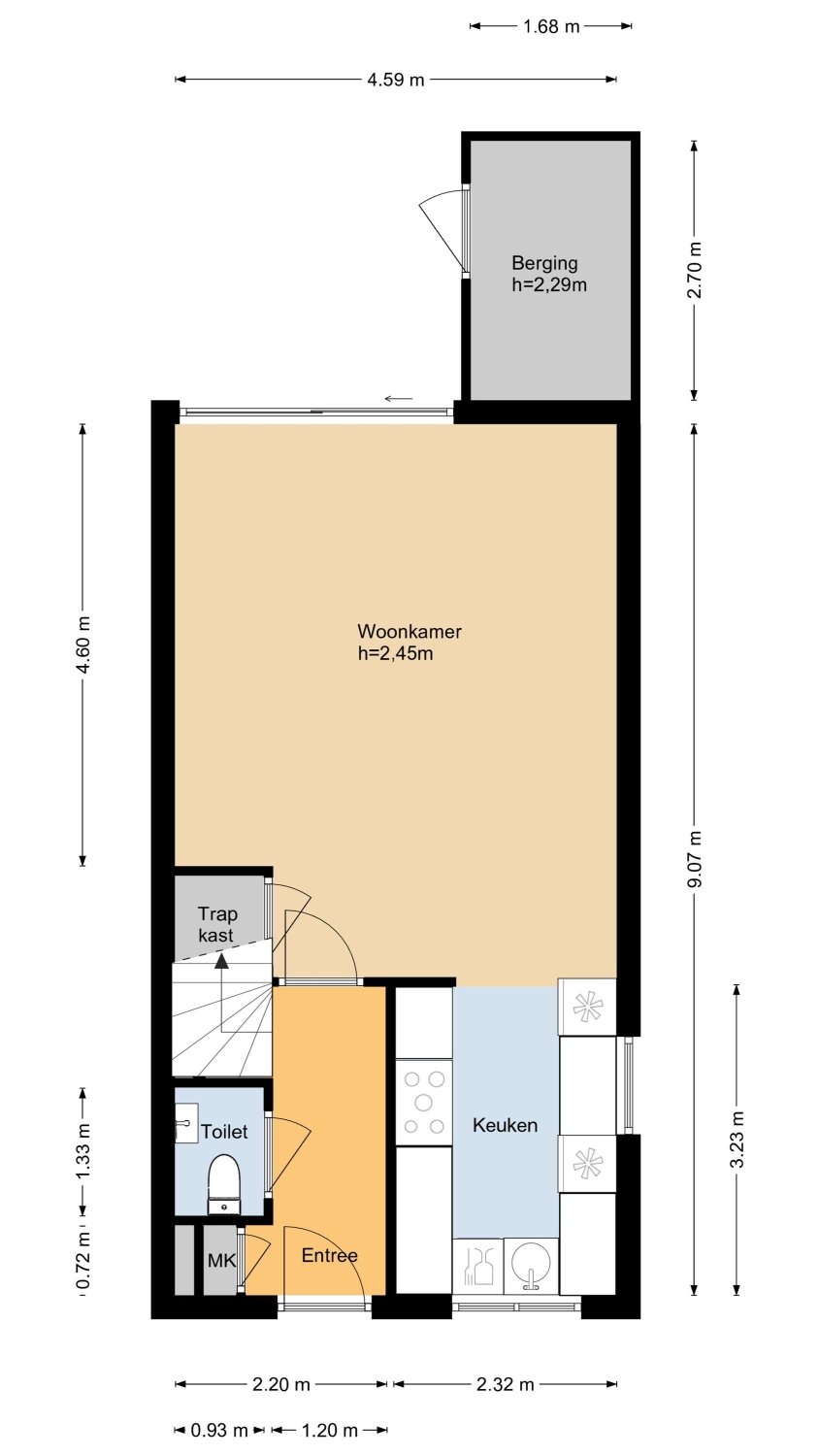
                                Zeer goed onderhouden, ruime HOEKeengezinswoning met heerlijk zonnige tuin en een dakterras. De grote ramen en extra zijramen maken het huis fijn licht. Goede ligging in de wijk Goverwelle, nabij een lagere school, het winkelcentrum, station en de diverse recreatiegebieden, zoals het Steinse Groen en de Reeuwijkse Plassen.Bouwjaar 1991. Het woonoppervlak bedraagt 103 m², de inhoud 345 m³. Gelegen op 136 m² eigen grond.
De indeling is als volgt:
begane grond: entree, hal met meterkast, toilet met fontein en de trap naar de verdieping. Heel lichte, ruime woonkamer met trapkast, zijraam en schuifpui naar de tuin. Moderne keuken (2020) aan de voorzijde met U-vormig kunststof "eiken" aanrechtblad met rvs spoelbak, veel bergruimte, Smeg fornuis met 4 gaspitten en een wokbrander, combi-magnetron, circulatiekap, vaatwasser, koelkast, vriezer (alle Siemens), veel bergruimte en een leuke "coffee-corner" bij het zijraam.
1e verdieping: overloop met bergkast, slaapkamer aan de voorzijde, 2 slaapkamers aan de achterzijde, waarvan één met airco-unit en zijraam. Mooie, moderne badkamer voorzien van een douchecabine, wastafel met meubel, hangend toilet, designradiator , wit en antraciet betegeling en een raam.
2e verdieping: overloop, was-/cv-/bergkamer met klein raam. Mooi grote slaapkamer met airco-unit en deur naar groot dakterras.
Bijzonderheden:
*Vanaf 2020 is de woning op vele fronten gemoderniseerd en heeft groot onderhoud plaatsgevonden. Dit bestaat onder andere uit het volgende: in 2020 zijn de platte daken voorzien van nieuwe dakbedekking en nieuwe dakranden, is de mechanische ventilatie vernieuwd, aan binnen- en buitenzijde geschilderd, zijn nieuwe laminaatvloeren (eiken visgraat op de begane grond) en is airconditioning aangebracht. In 2022 zijn de buitenmuren gereinigd en geïmpregneerd en is het hekwerk op het dakterras vernieuwd.
*De beide airco-units kunnen koelen en verwarmen.
*De fijne achtertuin is opnieuw aangelegd in 2024. Door de ligging op het zuiden kun je hier lekker van de zon genieten. Het elektrisch bedienbare zonnescherm biedt schaduw, wanneer gewenst.
*Aangebouwde houten schuur met extra overkapping aan de zijkant. In de schutting is een poort aangebracht.
*Aan de achterzijde bevindt zich een lagere school met een plein, waar kinderen ook na schooltijd fijn kunnen spelen. Op loopafstand van de woning bevindt zich een parkje met een kleine speeltuin.
EEN HUIS KOPEN? NEEM JE EIGEN NVM-AANKOOPMAKELAAR MEE!
Brochure
                            Brochure
                                        
                                    Plattegronden
                             
                                             
                                             
                                             
                                             
                                             
                                             
                                             
                                             
                                             
                                             
                                             
                                             
                                             
                                             
                                             
                                             
                                             
                                             
                                             
                                             
                                             
                                             
                                             
                                             
                                             
                                             
                                             
                                             
                                             
                                             
                                             
                                             
                                             
                                             
                                             
                                             
                                             
                                             
                                             
                                             
                                             
                                             
                                             
                                             
                                             
                                             
                                             
                                             
                                                 
                                                 
                                                 
                                                 
                                                 
                                                 
                                                 
                                                         
                                                         
                                                        