Westhaven 32                
                
                    2801 PK GOUDA                
            
                                    Vraagprijs € 425.000,-  kosten koper
                                
         
                        Omschrijving
                    Omschrijving
                                Groot en mooi licht bovenhuis met geweldig uitzicht op de gracht. Laat je verrassen door de ruimte en de privacy, die het huis bieden! Dit Gemeentelijk Monument is fraai gelegen aan het water in hartje binnenstad. Op de 2e verdieping een mogelijkheid tot een loggia.Bouwjaar 1895. Het woonoppervlak bedraagt 117 m², de inhoud 483 m³.
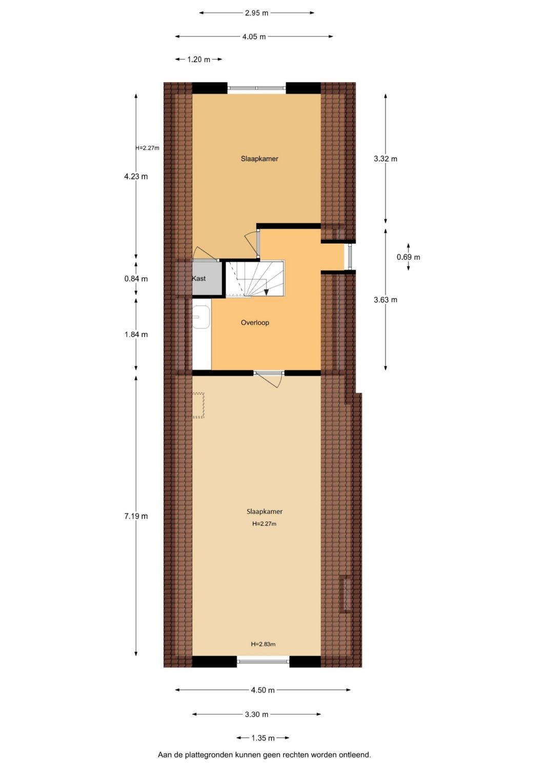
De indeling is als volgt:
begane grond: entree, portaal met tussendeur naar hal met trapopgang.
1e verdieping: ruime overloop met kast onder de trap. Heerlijk ruime, bijna 5 meter brede woonkamer met vaste kast, grote ramen, glas-in-lood bovenlichten en uitzicht op het water. Douche-/wasruimte, toilet. Keuken aan de achterzijde voorzien van een kunststof aanrechtblad (betonlook) met rvs spoelbak, close-in boiler en vaatwasser. Aansluitend een gezellige eetkamer.
2e verdieping: overloop met keukenblok met eveneens een kunststof aanrechtblad, rvs spoelbak en close-in boiler. Kleine dakkapel aan de rechterzijde. Sfeervolle (slaap)kamer aan de voorzijde met Velux dakraam, origineel balkenplafond en een schuifraam met zicht op de oude bomen aan de gracht. Slaapkamer aan de achterzijde met kast (voormalige doucheruimte).
3e verdieping: deze is bereikbaar vanaf de overloop via een luik en een losse trap. Het betreft een grote bergzolder, waar zich de cv-ketel bevindt.
Bijzonderheden:
*De mooi hoge plafonds op de 1e verdieping zorgen voor een fijn gevoel aan ruimte. De sfeer wordt onder andere bepaald door de diverse karakteristieke details, zoals de originele tegellambrisering in de hal op de begane grond, de glas-in-lood ramen en de originele robuuste kapconstructie, die in het zicht is gehouden op de 2e verdieping.
*De kamer aan de achterzijde op de 2e verdieping biedt de mogelijkheid tot het realiseren van een loggia (zie impressie). Ook kan op deze verdieping een extra badkamer worden gerealiseerd.
*De afwerking aan de binnenzijde is netjes en enigszins sober, maar is op een eenvoudige wijze om te toveren tot een moderne, lichte woning. Het onderhoud aan de buitenzijde maakt een verzorgde indruk.
*Het betreft een grachtenpand, dat is verdeeld in 2 appartementen. De Vereniging van Eigenaars is niet actief. De opstalverzekering en bankrekening zijn wel collectief. Servicekosten zijn niet van toepassing.
EEN MONUMENTAAL BOVENHUIS KOPEN? NEEM JE EIGEN NVM-AANKOOPMAKELAAR MEE!
Brochure
                            Brochure
                                        
                                    Plattegronden
                             
                                             
                                             
                                             
                                             
                                             
                                             
                                             
                                             
                                             
                                             
                                             
                                             
                                             
                                             
                                             
                                             
                                             
                                             
                                             
                                             
                                             
                                             
                                             
                                             
                                             
                                             
                                             
                                             
                                             
                                             
                                             
                                             
                                                 
                                                 
                                                 
                                                 
                                                 
                                                 
                                                 
                                                         
                                                         
                                                        