Catsveld 10
2804 BH GOUDA
Vraagprijs € 460.000,- kosten koper

Omschrijving
Omschrijving
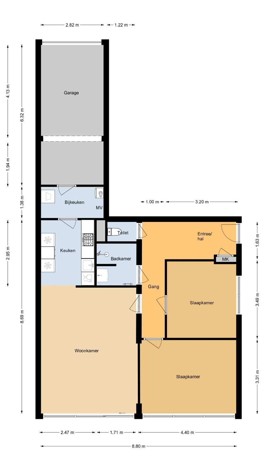
Fraai afgewerkt 3-kamerappartement op de begane grond met garage en een heerlijk zonnige, mooi aangelegde tuin. Sinds 2019 is de woning gemoderniseerd en verduurzaamd. Kortom: een zeer comfortabel huis, waar je zo in kunt trekken!Bouwjaar 1973. Het woonoppervlak bedraagt 80 m², de inhoud 312 m³. De tuin heeft een oppervlak van 102 m².
De indeling is als volgt:
Begane grond: gemeenschappelijk, afgesloten entree.
Privé-entree, hal met meterkast en toilet (hangend). Fijne, lichte woonkamer met grote schuifpui over de volle breedte en hoogte. Luxe semi-open keuken (2019) voorzien van kunststof aanrechtblad, rvs spoelbak, veel kasten en laden, inductie kookplaat, circulatiekap, oven, koelkast, vriezer, vaatwasser. Alle van Siemens. Aansluitend een portaal met de wasmachineaansluiting, cv-ketel (2019) en unit mechanische ventilatie. Deur naar de grote garage.
Twee ruime slaapkamers en een inpandige badkamer (geheel betegeld) met inloopdouche, wastafel met meubel en designradiator.
Bijzonderheden:
*Alle kozijnen zijn vernieuwd in 2019. Deze zijn van kunststof en hebben HR++ glas. In 2023/2024 zijn alle vloeren (inclusief de garage) geïsoleerd.
*Moderne, nieuwe binnendeuren met luxe deurklinken.
*Alle elektra is vernieuwd. Het plafond in de woonkamer heeft glad spuitwerk en de gehele woning is voorzien van een licht eiken pvc-vloer.
*Over de gehele achterzijde is een elektrisch bedienbaar zonnescherm aanwezig. Bij alle ramen en bij de schuifpui zijn horren aangebracht en één van de slaapkamers heeft een screen (elektrisch).
*De garage is voorzien van een elektrisch bedienbare segmentdeur.
*Actieve Vereniging van Eigenaars. De servicekosten bedragen € 218,69 per maand.
*Riante tuin met kleurrijke beplanting, terrassen, een buitenkraan en buitenverlichting. Gesitueerd op het zuidwesten.
*Centrale ligging nabij winkelcentrum Bloemendaal, het station en de uitvalswegen.
EEN APPARTEMENT KOPEN? NEEM JE EIGEN NVM-AANKOOPMAKELAAR MEE!
Brochure
Brochure
Plattegronden