Ribeslaan 2
2803 BT GOUDA
Vraagprijs € 415.000,- kosten koper

Omschrijving
Omschrijving
Goed onderhouden 5-kamer hoekwoning met voor- en achtertuin, lichte woonkamer, 4 slaapkamers en onderheide, vrijstaande stenen berging. Gelegen in de wijk Bloemendaal, een geliefde en rustige woonomgeving dichtbij het NS-station, sportaccommodaties, scholen, winkels en uitvalswegen. Bouwjaar 1971, 97 m² woonoppervlakte en 323 m³ inhoud, gelegen op 153 m² eigen grond.
De indeling is als volgt:
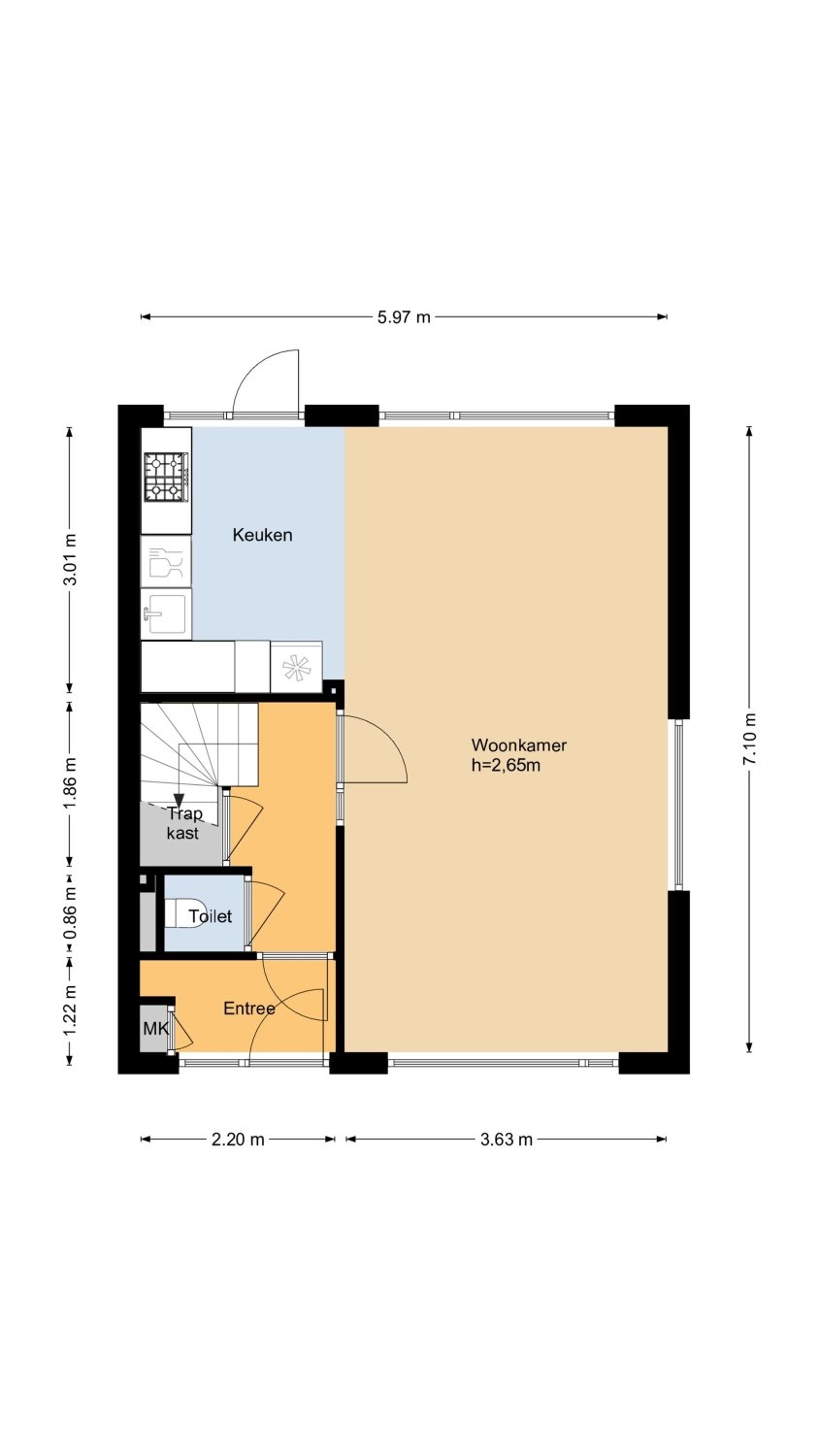
begane grond: entree, hal met vernieuwde meterkast. Gang met toiletruimte met wandcloset en fonteintje, trapkast en trapopgang naar slaapverdieping. Ruime, lichte doorzonkamer met extra zijraam en open keuken aan de tuinzijde.
Semi-open keuken aan de achterzijde van de woning. De keuken is in moderne, strakke witte uitvoering en L-vormige opstelling en voorzien van 4- pits gaskookplaat, RVS afzuigkap, combimagnetron (2022), vaatwasser (2022) en koelkast met vriesvak. Deur naar de tuin. De begane grond is voorzien van glad gestucte wand- en plafondafwerking en een mooie, lichte eikenhouten vloer.
1e verdieping: overloop, slaapkamer aan de voorzijde van de woning en twee slaapkamers aan de achterzijde. Fris wit betegelde badkamer, voorzien van ligbad, dubbele wastafel met meubel, tweede toilet en een raam. De eerste verdieping is voorzien van een eiken laminaatvloer. Alle wanden en plafonds zijn strak gestuct.
2e verdieping: overloop met opstelling cv-ketel, bergruimte en aansluiting voor de wasapparatuur. Vierde slaap-/werkkamer met Velux dakraam, inbouwverlichting, een sfeervol elektrisch haardje en veel bergruimte achter de knieschotten.
Tuin: de zonnige achtertuin is ca 10 meter diep en ligt op het oosten en is keurig aangelegd met bestrating en groenvoorzieningen. Vrijstaande, onderheide stenen berging aan de achterzijde van de tuin, voorzien van elektra en achterom.
Bijzonderheden:
* Deze goed onderhouden hoekwoning is in 2007 gerenoveerd (keuken/badkamer/leidingwerk/stucwerk wanden en plafonds).
* Goed geïsoleerde woning, er is recent nog vloerisolatie aangebracht. De woning heeft energielabel C.
* De gevels zijn recent gereinigd: het voegwerk is opnieuw aangebracht en de gevel is geïmpregneerd. Tevens is er gevelisolatie aangebracht (2023). HR ++ dubbel glas aanwezig (2024).
* Goede parkeermogelijkheden in de directe omgeving.
* Winkelcentrum Bloemendaal is nabijgelegen alsmede vele sport- en recreatievoorzieningen en uitvalswegen naar de omliggende steden.
* Kortom: een heerlijk licht en goed onderhouden hoekhuis met goede tuin en berging, gelegen op een mooie locatie in een gewilde woonomgeving!
EEN HUIS KOPEN ? NEEM JE EIGEN NVM-MAKELAAR MEE!
Brochure
Brochure
Plattegronden